Ref: 3108265
Calle Real
CP: 24410
3 Habs.
2 Baños
245 m2 útiles
285 m2 construídos
903 m2 de terreno
Estado: segunda mano
Año construcción: 1900
Consumo:
526 kW h m2 / año
Emisiones:
89 kg CO2 m2 / año
Propietario: 
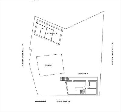
Conjunto formado por varias edificaciones para reformar sobre una parcela de 903 m2.
- Vivienda 1: casa de dos plantas distribuida en planta baja dedicada a local-bar con zona de barra, aseo y almacén planta alta acondicionada como vivienda, con zona de estar con cocina integrada, tres dormitorios y un baño.
- Vivienda 2: casa distribuida en zona de estar-cocina, tres dormitorios y un bajo.
Dispone de varias construcciones anejas destinadas a cuadras y pajar.
Fotografías no contractuales
Precios sin impuestos. Más información en nuestro blog Impuestos a pagar en la compra de una vivienda de segunda mano
Algunos de los inmuebles comercializados a través de ABANCA INMOBILIARIA tienen instaladas diversas medidas de seguridad, tales como alarmas, puertas de seguridad, etc , que no forman parte de la oferta de venta y por lo tanto, no serán objeto de transmisión junto con el inmueble, procediéndose a su retirada, de forma previa a la formalización de la escritura de compraventa.
Calle Ramona Ojea
A Rúa
Ourense
Referencia 9313980
Vivienda aislada
9 habs.
6 baños
1,014.14 m2
Lugar Vilapedre
Sarria
Lugo
Referencia 9312577
Vivienda aislada
3 habs.
1 baños
208 m2
Calle Principal 20 - Polígono 154, Parcela 273
Verín
Ourense
Referencia 9313029
Vivienda aislada
3 habs.
1 baños
304.5 m2
Carretera Fuente Villaente a Boñar
Santa Colomba de Curueño
León
Referencia 9311377
Vivienda aislada
225.2 m2
Sobre ABANCA Inmuebles
Aspectos legales y de seguridad